报报报!
城投女排娘家地块传来新动态
就在今天
漳州市自然资源局发布了
漳州2021P13地块建设工程设计方案
总平面图批前公示
话不多说,一睹为快
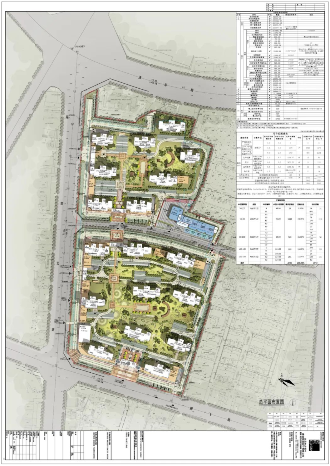
附图
据了解,女排娘家基地20222P13地块的案名已公开,为“珑璟新苑”。
而从项目设计方案总平图中透露的信息,我们可以看到:
珑璟新苑共有住宅18栋,最高楼层27层、最低23层,整体呈纯高层布局。
项目总用地面积约82135㎡,总建筑面积约299355㎡,容积率为2.8,绿化率30%。
项目总户数2342户,其中:
50㎡以下的住宅有24套;
50-80㎡的住宅有1048套;
80-100㎡的住宅有740套;
100-150㎡的住宅共有630套。
除此之外,项目还将配建一所幼儿园(9班)以及社区生鲜超市,生活便利程度Max!
延伸阅读:
珑璟新苑
2021P13 地块(珑璟新苑):
起拍楼面价:4153元/平
上限楼面价:6153元/平
竞拍方式:限地价,竞回购价
位置:芗城区漳华路以南、延安北路以东、腾飞路以北
用地性质:二类居住用地(R2)
用地面积:82135㎡
容积率:<2.8 建筑密度:<18%
计容建筑面积:<229978㎡
建筑限高:<80米
项目于2022年1月13日的漳州市区2022首场土拍由城投以楼面价4283元/㎡、总价9.85亿元,溢价率3.14%竞得。
地块与一街之隔的新华都百货
地块现场图
珑璟新苑位于老城区中心,周边涵盖新华都、大润发等商业体,亦有延通市场等日常消费场所,各项配套齐全。
虽为安置用地,但占据着漳州市区最好的地段。可以说,女排娘家基地征迁户的这波“腾笼换鸟”,值!
平面图的公示
也意味着项目离面市又近了一步
一起期待珑璟新苑的建成吧~
文件来源:漳州自然资源局
九房网漳州站综合整理







闽公网安备 35020302035470号
最新评论