2月份以来,随着经济复苏,房地产利好政策持续出台,全国多个城市密集发布降首付、降利率等宽松政策,楼市回暖的信号越发明显。最新数据显示,厦门、广州、深圳、佛山等全国多个城市的成交等数据均有明显上涨,楼市呈现“小阳春”。
而在漳州,市政府、市住房建设局接连对漳州房地产提出一系列积极定调,《漳州市促进房地产市场平稳健康发展的若干措施》发布降低首付比例、提高公积金贷款额度、发放购房补贴等一系列政策。政策加持下,漳州已经迎来置业良机。
实拍图
励欧·玖颂西湖作为西湖片区的人气红盘,在楼市暖风劲吹的环境下,也迎来开春热销。2月份累计接待客户上千组,营销中心现场也是人声鼎沸。
现场实拍图
励欧·玖颂西湖的热销,一方面源于市场回暖态势,另一方面来自励欧·玖颂西湖优越的区域和配套,以及精心打造的产品品质,从地段环境配套,到内部产品打造的内外兼修,让励欧·玖颂西湖成为西湖片区购房优质之选。
现场实拍图
优质的教育资源,是购房者选择的重要因素。市实小松柏分校已于去年9月1日正式开学,在整个西湖片区,励欧·玖颂西湖不仅划为市实小松柏分校学区范围内,更坐拥一墙之隔的邻距离优势,上学更便利。
温馨提示:学位政策以政府教育主管部门最新规定为准。
市实小松柏分校设置有30个教学班,可容纳1350位学生,由漳州市实验小学共建领办,并派驻包含特级教师、福建省学科带头人、市级学科带头人、区级名师、骨干教师等教学精英团队参与学校教育教学管理,致力于打造西湖片区的标杆学校。
信息来源:漳州市实验小学官网《高位嫁接赋能“松柏”——漳州市实验小学与漳州市松柏小学共建签约仪式》
实拍图
同时西湖片区的价值正在逐步兑现。随着西湖生态园的正式开放,政府计划投资约¥260亿元打造的西湖蓝图日渐呈现,一个环境优美、道路齐整、公园环绕的高品质居住区崭新呈现,未来致力于成为漳州人居新高地。
数据来源:家在漳州公众号《数据更新了!漳州西湖计划总投资260亿》
实拍图
作为励欧地产进入漳州首个作品,励欧·玖颂西湖在品质打造上精益求精,从社区入户到家的多处细节,精心选用一线品牌用材,即便是不为人关注的角落,如消防通道、排水等处都以精细化施工标准,比肩豪宅的配置,呵护生活品质。
更值得期待的是,励欧·玖颂西湖已经进入准现楼状态,今年买今年住。购房者无需长时间等待,减少供楼时间和成本,更快兑现美好生活。
实拍图
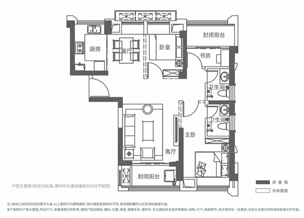
开春热销,励欧·玖颂西湖5#楼新品即将应市加推。作为社区中庭楼栋,位于社区正中央,前后园林簇拥,从产品到景观全面升级。建面约93-117㎡爆款户型,满足从三口之家到三代同堂的生活需求。
效果图
建面约93㎡三房,带宽景双阳台,边套设计,可实现三面采光和南北通透,合宜面积外加南北通透的户型,在市面上实在不可多得。
建面约117㎡四房,户型方正,动静分区。客厨一体化设计,互动性更强,无论家庭娱乐,或是宾客来访,都足够宽敞的空间,可满足三代同堂的居住需求。同时坐享大开间阳台,开阔景观视野,彰显生活气度。
开发商:福建励欧房地产开发有限公司;代理商:泉州万利通房地产营销有限公司;整合推广:深圳市百应广告有限公司;备案名:玖颂西湖;推广名:励欧·玖颂西湖;预售证号:(2022)漳房预售证第050号;一切图文资料、规划设计、建筑面积均以政府最终批准文件及双方签订的商品房买卖合同为准。学位政策以政府教育主管部门最新规定为准。以上价格有效期截止至2023年3月31日。
























闽公网安备 35020302035470号
最新评论